Para venda atividade comercial, cidade Sannicola LE

Edifício industrial, escritórios e habitações isoladas, Sannicola , 1200mq

Para venda atividade comercial, cidade
IT Sannicola - LE
€ 699.000
Número de camas: 6
Banhos: 5

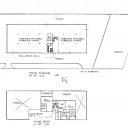
Sannicola, na zona produtiva do núcleo artesanal, pomos à venda uma fábrica industrial, escritórios e uma casa isolada. O edifício tem dois pisos: no rés do chão encontram-se as zonas de produção, o armazém de materiais, um escritório e as casas de banho. A grande fábrica do rés do chão foi dividida em duas unidades com serviços independentes, uma com 710 metros quadrados e a outra com 490 metros quadrados. Através de uma escada que permite a construção de um elevador, acede-se ao primeiro andar, que é composto por três apartamentos independentes. Um com cerca de 95 m2 é composto por um hall de entrada, uma sala de estar ampla e luminosa rodeada por um grande terraço nivelado, uma sala de jantar com kitchenette e lareira, três quartos duplos, um dos quais com roupeiro, uma casa de banho com banheira e uma segunda casa de banho com chuveiro. As outras duas unidades são compostas por sala de estar com kitchenette, três quartos, duas casas de banho, sala de estudo, num total de 315 metros quadrados. Toda a propriedade está equipada com vidros duplos, estores eléctricos, radiadores, ar condicionado e está acabada com materiais de qualidade. A propriedade está completamente vedada e tem três portões de entrada deslizantes e electrificados, um dos quais para acesso pedonal. Por fim, a área aberta é parcialmente pavimentada.

Solução ideal para quem pretende criar uma estrutura de acolhimento ou uma residência privada.

Para mais informações, contacte ******. (******)

Para as últimas novidades siga-nos no Instagram: Lucerimmobiliare

SI- 699

Cl. En. G

Sannicola é um município com cerca de 6.000 habitantes, situado na costa jónica do Salento, que inclui as aldeias de Chiesanuova e San Simone, bem como grande parte da estância costeira de Lido Conchiglie, e que foi criado em 1908 por destacamento do município de Gallipoli. Do ponto de vista meteorológico, Sannicola faz parte da zona do Baixo Salento, que apresenta um clima tipicamente mediterrânico, com Invernos suaves e Verões quentes e húmidos. Na época bizantina, toda a zona era designada, até ao século XVIII, pelo nome grego de Rodogallo, que significava “lugar de belas rosas“. O dialeto salento é amplamente falado e está carregado de influências que remontam às dominações e povos que se estabeleceram nesta zona ao longo dos séculos: messapianos, gregos, romanos, bizantinos, lombardos, normandos, albaneses, franceses e espanhóis. A sua localização estratégica, a poucos quilómetros de Gallipoli, é um verdadeiro ponto forte, pois é muito fácil chegar às estâncias balneares de Punta Pizzo, Baia Verde, Rivabella e Lido Conchiglie. Todo o litoral se caracteriza por uma praia baixa e muito extensa de dunas brancas, composta por belas praias de areia e água cristalina, muito procuradas no verão, e entrecortada por falésias que se abrem para praias de areia e recantos escondidos.


Características
  • Ref. interna: SI- 699
  • M²: 1200
  • Banhos: 5
  • Classe energética: G
  • Aquecimento: Autónomo

Espaços amplos

Iniciado

Rendimento imobiliário

Independente

Entradas múltiplas

15 anni
COPYRIGHT © 2026 L4S S.R.L - P.Iva IT12571220966 - Created by n-exit - Privacy / Policy - Terms & conditions